Ivry-sur-Seine (94)

100 logements collectifs - 181 chambres pour jeunes actifs - Equipement

Rue Ledru Rollin - quartier du centre ville

Maitrise d'ouvrage

LINKCITY IDF - SCI Ivry Tennis / NEXITY Immo Résidentiel

Programme

60 logements en accession, 40 logements sociaux, 181 logements pour jeunes actifs et une crèche

SHON

12 134 m²

Performances énergétiques

RT 2012 – Certification H et E profil A

Mission

Maîtrise d’œuvre de conception et d’exécution

Montant des travaux

21.22 M €

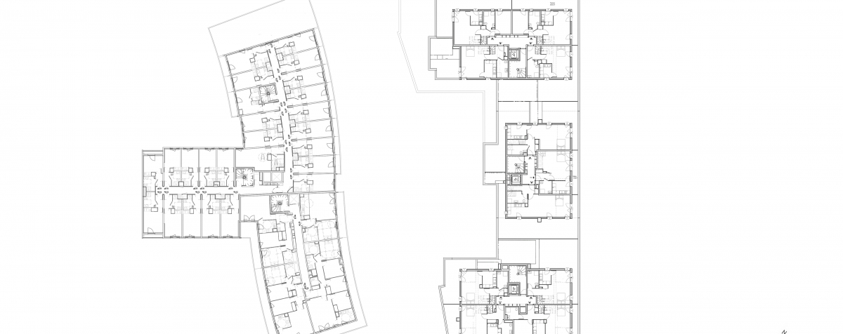
Présentation

Le projet se compose d’un bâtiment R+6 à R+9 comprenant la résidence et les logements collectifs sociaux et d’un bâtiment R+4 situé en bordure du parc des Cormailles qui comprend un équipement à rez de chaussée et les logements en accession. Ces deux constructions encadrent une place.
Les toitures sont composées de terrasses végétalisées. Le stationnement se fait en sous-sol. L’opération est raccordée au réseau de chaleur urbain pour le chauffage et la production d’ECS.
Les matériaux de façade, béton matricé gris pour le rez de chaussée, brique blanche pour les étages intermédiaires, bardage métallique pour les attiques et bois pour les panneaux coulissants des balcons filants soulignent la volumétrie de l’ensemble.

Oeuvre pérenne pour l'espace public "La rémanence du passing-shot", Edouard Sautai.