Pantin (93)

129 logements

Rue Mongolfier et Rue Etienne Marcel

Maitrise d'ouvrage

Groupe ARC

Programme

129 logements en accession, stationnement en sous-sol

SHON

10574 m²

Mission

Maîtrise d'oeuvre de conception et d'exécution - SNC Lavalin BET fluides et structures

Montant des travaux

10,1 M €

Livraison

2007

Présentation

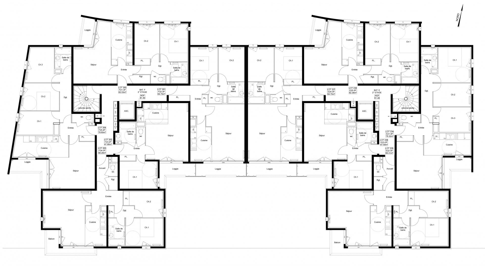
L’opération comprend un groupe de 6 bâtiments R+4 et R+5. Les bâtiments situés en cœur d’îlot sont desservis par une placette centrale. L’ensemble de l’opération comprend 129 logements.

Des retraits et des percées visuelles facilitent l’interaction entre jardin public et jardins privatifs de l’opération. Le rythme général et l’aspect unitaire sont soulignés par les points hauts de chaque bâtiment où sont logés des appartements en duplex surmonté de toitures légèrement courbes.

Les façades sur rue et celles à l’alignement du jardin public sont revêtues de briques de parement de deux coloris. Une teinte foncée (terre anthracite) marque le soubassement des constructions, une teinte plus claire (terre orangée) habille les étages des volumes de premier plan ou à l’alignement de l’espace public. Les volumes en retrait et les fonds de loggias sont revêtus d’enduit clair de ton pierre naturelle.

L’épannelage de l’ensemble est diversifié pour répondre à l’épannelage général de l’îlot et du quartier.