Vitry sur Seine (94)

46 logements collectifs

Rue de la concorde

Maitrise d'ouvrage

CITIC - SCI La Concorde

Programme

46 logements collectifs

SHON

3311 m²

Mission

Maîtrise d'oeuvre de conception et d'exécution

Montant des travaux

4,48M €

Certification

BBC

Livraison

2014

Présentation

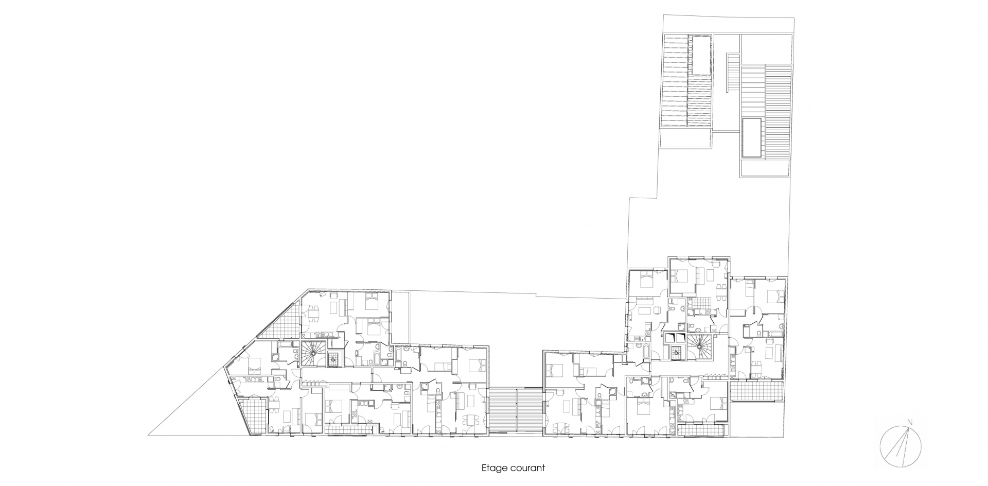
Le projet est composé de deux immeubles et de deux petites constructions accolées. Les deux immeubles sont constitués d'un soubassement R+3 respectant l'alignement de la rue ainsi qu'un couronnement de deux niveaux en retrait assurant d'une part la continuité du front bâti et d'autre part la transition avec un habitat plus pavillonnaire en cœur d'îlot. Le bâtiment constitué de deux maisons accolées en R+2 s'adapte au contexte en s'alignant aux pignons existants de part et d'autre du terrain. L'ensemble de ces constructions représente 46 logements. L'ensemble des logements est agrémenté d'un jardin privatif, d’une terrasse ou d’une loggia.
La brique de parement ou des vêtures adaptées aux techniques d'isolation par l'extérieur (si besoin est) caractérisent toutes les constructions. Le bois souligne le traitement des volumes supérieurs constituant un couronnement ainsi que les menuiseries et les éléments de protection solaire (volets…).
L'ensemble du projet répond aux exigences du label BBC pour la consommation énergétique et au traitement maîtrisé des eaux pluviales. La maîtrise et la réduction des besoins énergétiques des constructions impliquent aussi bien l'optimisation de l'orientation des logements que l'amélioration des performances thermiques des constructions.