Orly (94)

60 logements collectifs et 12 maisons de ville

ZAC Calmette

Maitrise d'ouvrage

EXPANSIEL Promotion

SHON

4 600 m²

Mission

Maîtrise d'oeuvre de conception et d'exécution Biotope BET Fluides

Montant des travaux

7.64 €

Présentation

L’opération comprend 60 logements collectifs et 12 maisons de ville destinées à une accession sociale.
L’implantation des maisons se fait en quinconce. Des jardins privatifs s’organisent à l’arrière de chaque maison. Elles sont revêtues de plusieurs matériaux qui répondent à la composition en volume et participent à créer une échelle individualisée des maisons : de l’enduit blanc lisse en façade arrière des maisons, de la brique grise et ton orangé, du bardage bois et du bardage métallique en acier laqué.
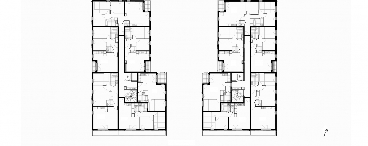
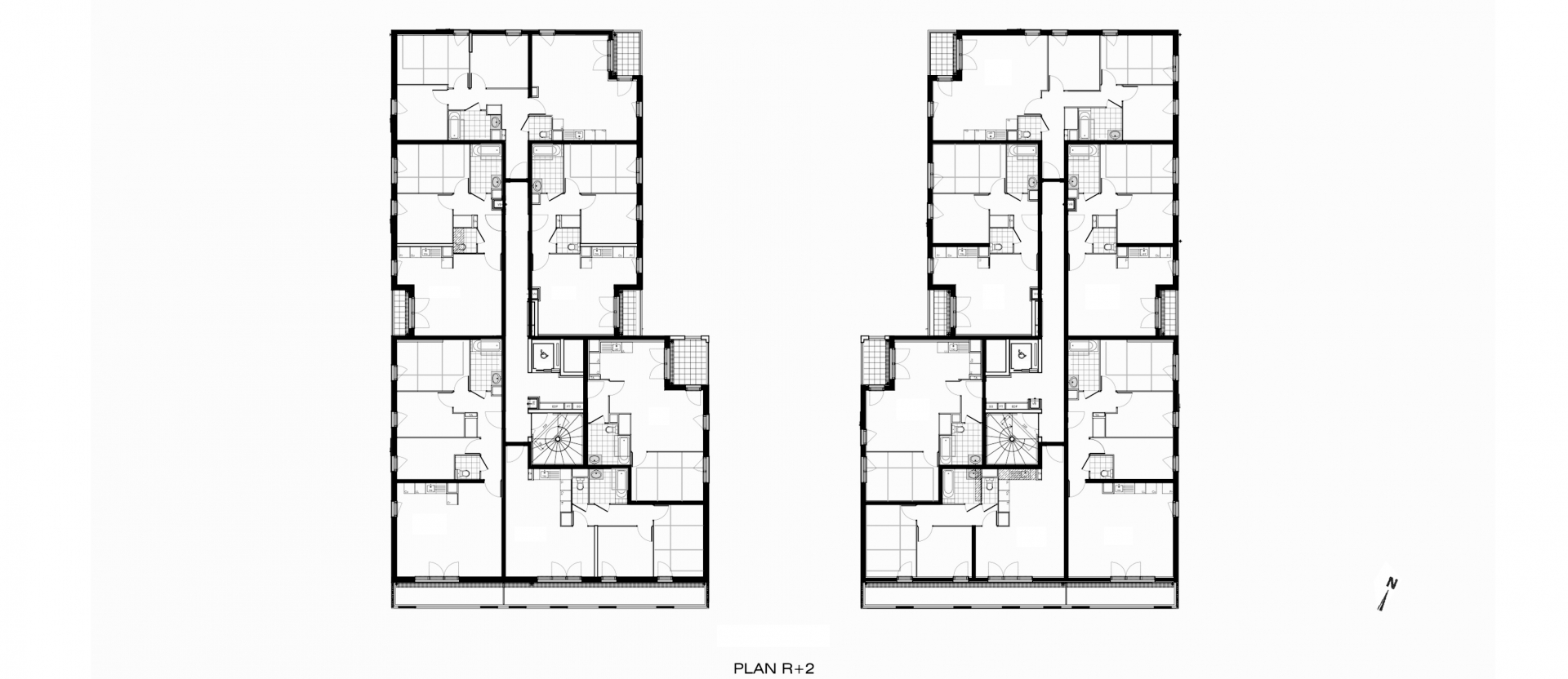
Les 60 logements collectifs sont répartis en deux bâtiments de quatre étages sur rez-de-chaussée. Ils présentent une symétrie en plan autour d’un espace central.
Les façades sont revêtues de plusieurs matériaux qui répondent à la composition en volumes et participent à créer une échelle intermédiaire de grosses maisons en attique posées sur un socle de deux ou trois étages. En attique le bois et l’acier laqué revêtent les façades. Les socles des bâtiments sont revêtus d’un enduit blanc. Le rez-de-chaussé est partiellement revêtu de brique grise.
Les volumes des bâtiments sont simples pour éviter les linéaires de façades susceptibles d’augmenter les déperditions. La compacité du bâtiment est le meilleur atout d’un bâtiment économe en énergie.