MALAKOFF (92)

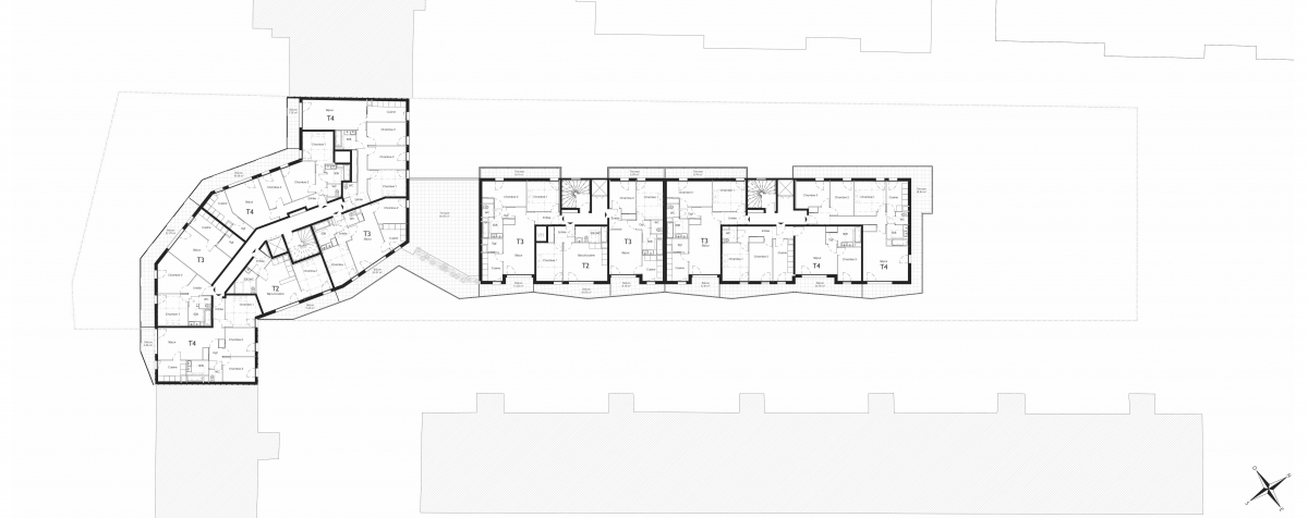
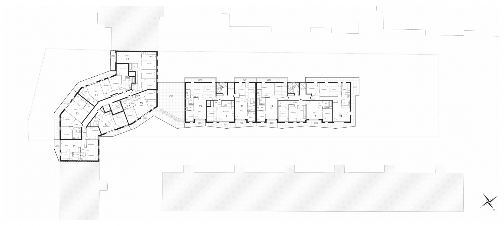
70 logements sociaux

69 rue Etienne Dolet

Maitrise d'ouvrage

OPH MALAKOFF HABITAT

SHON

4606 m²

Performances énergétiques

RT 2012 -20% / EFFINERGIE+

Mission

Mission complète Conception-réalisation avec Paris Ouest Construction A-MAR Paysagistes

Montant des travaux

8,5M €

Certification

NF HABITAT HQE

Prix et distinctions

Projet lauréat

Présentation

Inscrite au sein de la ZAC multi-sites Dolet-Brossolette, l’opération de 70 logements sociaux se positionne avec finesse, à la manière d’un trait d’union, au sein d’un ensemble hétérogène auquel il confère une cohérence nouvelle. Ce geste de liaison en un mouvement fluide relie les deux pignons mitoyens aveugles, et constitue un nouveau front bâti qui s’inscrit dans une séquence urbaine à l’échelle de la rue.

L’écriture architecturale à la contemporanéité affirmée s’insère dans l’esprit du lieu et permet une mise en résonnance des bâtiments alentours à l’architecture variée. Les façades donnant sur le cœur d’ilot étant visibles depuis la rue Etienne Dolet, elles bénéficient du même traitement soigné que la façade sur rue. Les façades sont traitées à la fois comme une surface et comme une épaisseur habitée ayant une valeur d’usage. Cette seconde peau est constituée d’une maille métallique mordorée habillant garde-corps et brise-soleil verticaux, dont les jeux de transparence et d’opacité varient au long de la journée suivant l’exposition au soleil. La surface vibrante aux reflets subtils de la maille métallique filtre la lumière et produit un jeu délicat d’ombres portées sur la façade en enduit blanc située en arrière-plan. Les toitures en pente, revêtues en bac acier de teinte claire irisée, se retournent en façade des niveaux en attique. Les combles intègrent les installations techniques et offrent ainsi un traitement de qualité de la cinquième façade.

Une attention particulière est portée sur l’orientation des logements, dont la variété des vues et l’exposition ont guidé les choix d’implantation. Tous disposent d’un espace extérieur généreux.