Montreuil (93)

Réhabilitation de 27 logements

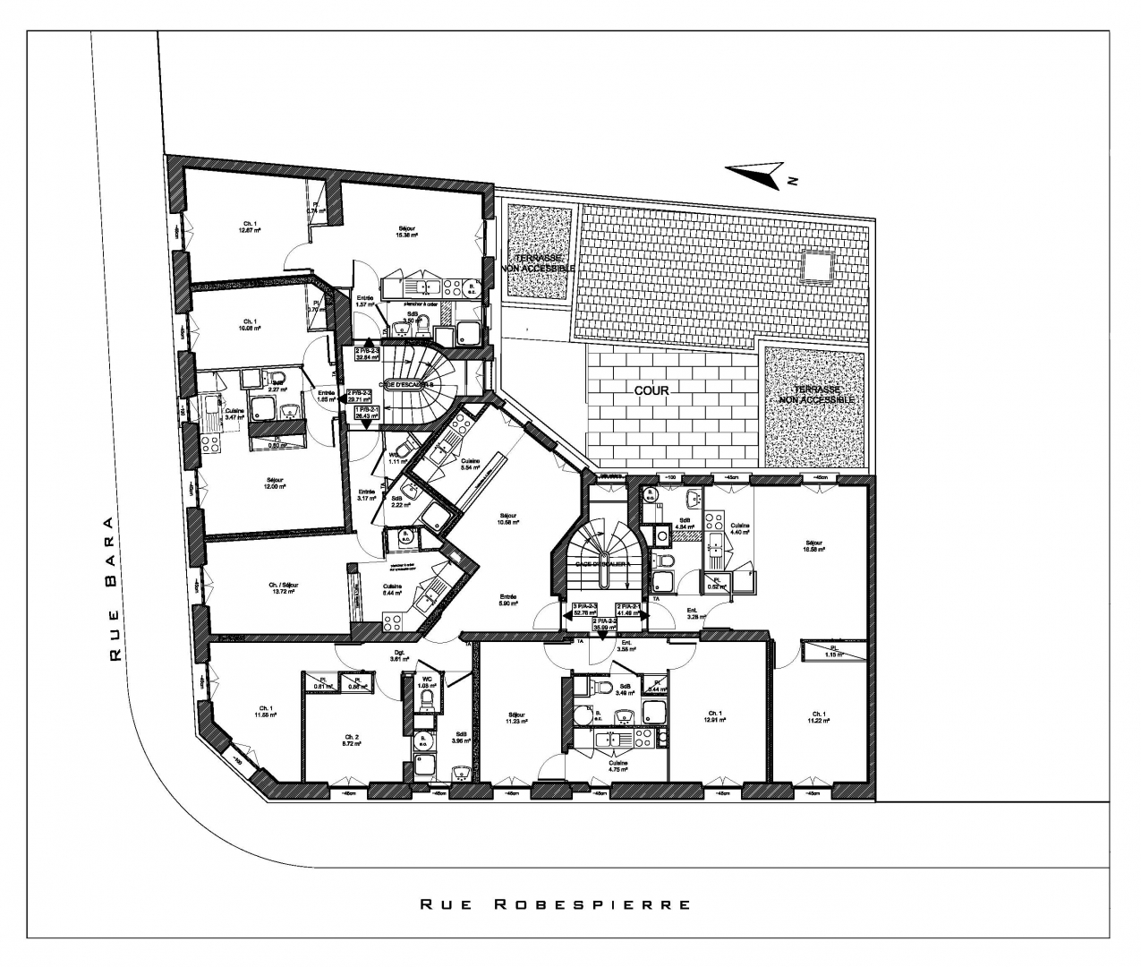
33 rue Robespierre

Maitrise d'ouvrage

OSICA Groupe SNI

Programme

Réhabilitation et mise en conformité de 27 logements collectifs

SHON

1 000 m²

Mission

Maîtrise d'oeuvre de conception et d'exécution - SNC Lavalin BET fluides et structure - TECSOL BET Energie solaire

Montant des travaux

1,36 M €

Certification

Certification Patrimoine Habitat

Présentation

La réhabilitation a eu pour objet : la révision de la toiture, de la charpente, la pose de panneaux solaires, le ravalement à l’identique des façades et la réfection des menuiseries extérieures, la réfection des logements : installation de cuisine et de salle de bains, l’isolation thermique des bâtiments.
Les modifications portent également sur la création de surfaces hors œuvre :
- Fermeture par un plancher à chaque niveau du puits de lumière,
- 22 m² de surface sont créés en extension des logements du R.D.C autour de la cour.
Les façades du RDC sont modifiées à cause de la transformation du commerce en logement, rue Robespierre.
En toiture, les panneaux solaires sont posés au sud et à l’ouest. Ils ne sont pas visibles de la rue à cause de la faible pente de la toiture.